
How to Design a Small Restaurant Floor Plan, Layout and Blueprint
What is a small restaurant floor plan? Why do you need one? Here’s how to choose a small restaurant floor plan and design your layout.
Tyler MartinezAuthor

Restaurant Floor Plan Templates
Use these restaurant floor plan templates to get inspired as you map, or reimagine, the layout and space setup for your restaurant.
Get Free DownloadWhat makes small restaurants stand out is how warm and cozy they are. Yet, with limited space, it can be a bit of a challenge to make your space accessible to every guest. Even more so, many states require restaurants to submit blueprints and floor plans before obtaining building permits so that your restaurant can open.
Designing your restaurant floor plan is a way to guarantee that you successfully get these permits and have a smooth running restaurant. This guide is here to help you set your small restaurant up for success with an expertly devised floor plan.
Key Takeaways
Define Your Concept and Theme: Your concept will guide your layout choices. A cozy café may need more intimate seating, while a fast-casual eatery may prioritize quick access and efficiency.
Maximize Space with Strategic Zoning: Divide the space into zones: dining, kitchen, waiting area, and restrooms. Each area should be proportionate to its use and accessible without disrupting traffic flow.
Consider Guest Flow and Comfort: Ensure a smooth traffic flow from the entrance to seating, ordering, and exiting. Keep aisles wide enough for guests and staff, and create clear paths to essential points like restrooms and exits.
Balance Seating Capacity and Ambiance: Plan your seating to balance the number of guests you can serve with the comfort you want to provide. The industry-standard 60/40 ratio—60% dining area, 40% kitchen and staff spaces—is a useful guideline.
Optimize the Kitchen Layout: A well-designed kitchen enhances productivity and food quality. Arrange the prep, cooking, and dishwashing areas for minimal cross-traffic, and allocate enough space for food storage and staff movement.
Incorporate Technology Thoughtfully: Modern POS systems, including handheld devices, can streamline service, reducing the need for staff to move frequently. Strategically place POS stations to minimize disruption in high-traffic areas like the bar and main dining area.
Prioritize Accessibility and Safety: Follow local building codes and accessibility guidelines to ensure that all guests are welcome. Emergency exits should be clearly visible, and the whole space should be easily evacuated in case of an emergency.
Create an Inviting Entrance and Waiting Area: First impressions matter. Design an entrance that reflects your brand and offers guests a pleasant waiting experience.
Restaurant Floor Plan Templates
Use these restaurant floor plan templates to get inspired as you map, or reimagine, the layout and space setup for your restaurant.
What is a Restaurant Floor Plan?
A floor plan is a map of your entire physical restaurant space. Every inch of space needs to be accounted for, indoors and outdoors. Ultimately, the floor plan lets you visualize how all aspects of your small restaurant fit together.
Floor plans require a little research and creativity – they must balance your vision for your small restaurant with the accessibility of the space. How your guests and employees will navigate your small restaurant is just as important as the ambiance and experience.
A small restaurant floor plan should include:
Food prep areas
Kitchen
Entrance areas
Waiting areas
Dining and seating areas
Staff areas, offices, and break rooms
Cashier stations and your POS system(s)
Restrooms
Dish area(s)
Doors
Windows
Emergency Exits
Accurate measurements of the space
How to Create a Small Restaurant Blueprint and Floor Plan
Floor plans can be quite detailed, customized to meet both permit guidelines and your unique brand style. If you're planning to create a floor plan on your own, consider using one of these software tools.
Floor Plan Software
Whether you're designing the floor plan yourself or collaborating with an architect, always remember these best practices.
Small Restaurant Floor Plan Design Best Practices:
Design accessible spaces with your customers in mind. Consider both your guests’ and employees' needs, as well as local building codes, when organizing the floor plan for all of your small restaurant’s spaces.
Include ample space for your guests while they wait for tables.
Create an intuitive flow of service so that customers are not confused by how your restaurant functions.
Factor in where your employees will be working. This includes identifying where POS systems will exist to efficiently conduct transactions and communicate with the kitchen.
Consider how the floor plan works for the theme and ambiance of your small restaurant.
Designing an optimal restaurant layout can directly impact customer satisfaction and spending. Research shows that when guests are given more space, they not only feel more comfortable but also tend to be more generous in their spending.
Cornell University, School of Hotel Administration
Restaurant Business Plan Template
No matter where you’re at in your restaurant ownership journey, a business plan will be your north star. Organize your vision and ensure that nothing is overlooked with this free template.
1. Kitchen Floor Plan
The restaurant’s kitchen layout is a primary consideration for any foodservice business. Think about how you can optimize the space for production and efficiency. Leave enough room to store all of your restaurant’s equipment. And, give your employees plenty of free space to prep, cook, and bake.
Time, quality, and, eventually, profits are sacrificed when there’s not enough space for employees to do their jobs efficiently. So, make the most of your small restaurant’s commercial kitchen design by prioritizing the production capacity of your menu and your staff.
Below is an example from CadPro of a restaurant kitchen floor plan that includes space for goods receiving, inventory management, dry storage, prep, cooking, dishes, a bathroom, and a staff changing room.
Restaurant Floor Plan Templates
Use these restaurant floor plan templates to get inspired as you map, or reimagine, the layout and space setup for your restaurant.

2. Waiting Area Floor Plan
It’s common for the waiting area to be neglected or treated as an afterthought, leading to cramped spaces where guests are crowded or in the way of servers and diners.
Avoid this pitfall, as the waiting area presents a valuable chance to demonstrate exceptional hospitality.
One straightforward way to enhance the guest experience is by offering a complimentary coat check, showing your restaurant’s dedication to customer comfort.
“Restaurant operators can sacrifice a great deal of storage and sales opportunity, or the ability to open the room up more for bar seating. But at the end of the day, the coat check adds to the hospitality, even if only in the winter,” said Richard Coraine, senior managing partner of business development and consulting for Union Square Hospitality Group. Coraine helped implement coat checks in Gramercy Tavern in New York.
An additional guest-focused idea is to station a dedicated host in the waiting area, responsible for ensuring guests feel comfortable and content as they wait, a strategy successfully employed by Giovanni’s Restaurant in Copperas Cove, Texas. This host should be skilled at interpreting guests’ body language and facial cues and, if possible, able to offer a drink or complimentary appetizer when waits extend or guests appear impatient.
3. Full Bar Floor Plan
Design a bar area that not only looks great, but is intuitive for your bartenders and other employees. Consider consulting professional bartenders. Industry experts know how the flow of bar service works best – no reason to reinvent the wheel.
The more bar seating and tables you have, of course, the more difficult it can be for servers and bartenders to navigate the space. Odd Duck in Austin, TX found a solution in Toast Go, a handheld restaurant POS system, that allows servers to split checks, take orders, take payment, and collect guest feedback right at the table or the bar.
The menu, style of service, and processes your staff will follow should inform the layout interior design of the bar. Consider what stations need to be near each other, how many bartenders will be on each shift, and the service capacity of your small restaurant.
4. Staff Area Floor Plan
Staff areas (such as offices and break rooms) should always be included in your floor plans. Be sure to set aside back-of-house space for your managers to complete administrative tasks and for your staff to take breaks. Designating an area for staff will keep your small restaurant organized while also providing a communal place to post schedules and announcements.
For example, at BrightHub, the staff quarters are positioned just outside the dining area and adjacent to the kitchen. This room is conveniently located and includes a door, allowing employees to have brief, private conversations with ease.
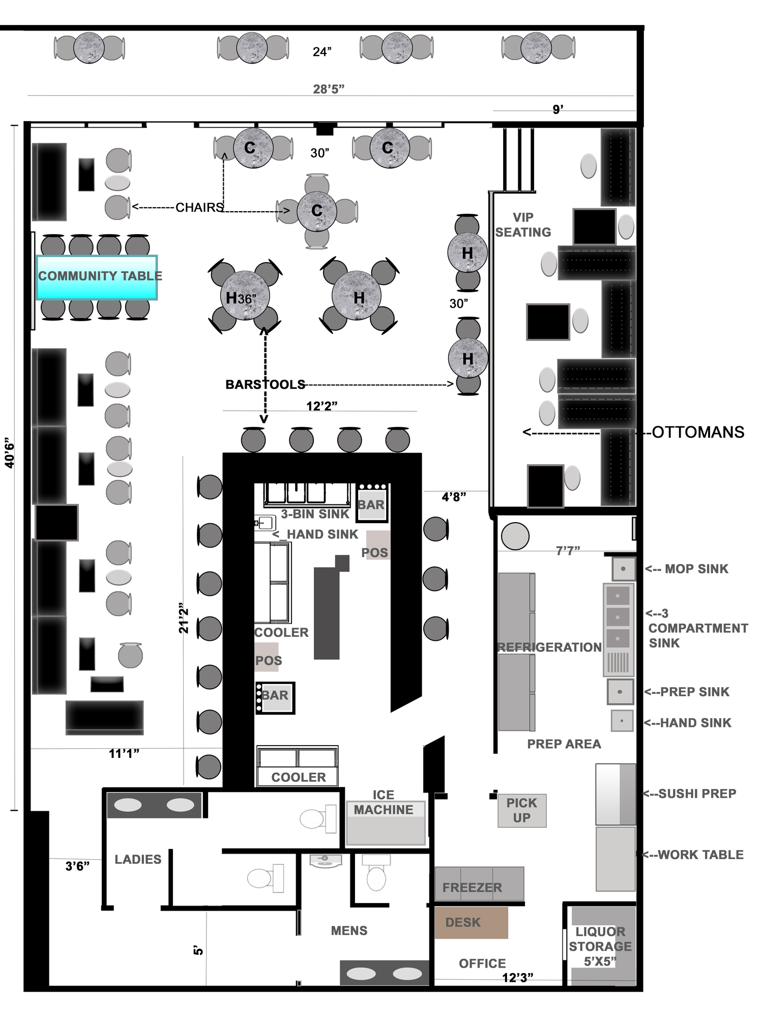
5. Dining Room Floor Plan
The dining room is arguably the most important blueprint you’ll make. It drives the bulk of the guests’ experience! Your dining space floor plan needs to give customers access to the restaurant and match the aesthetic of your brand.
A sleek, open floor plan is great for a modern dining experience. But, if you’re looking to create a cozy space where your community can gather, you may want to create a floor plan that compliments a subdued, warm, and inviting ambiance.
Also, make sure to consider your competitors in the area. Doing a little research on your competition can answer important questions like - what expectations will your community have for your small restaurant? How will you surprise customers to keep them returning to yours? These questions can assist you in developing a strategic floor plan that supports your small restaurant’s success.
How much seating should a small restaurant have?
To understand your restaurant seating plan, consider the industry standard. According to Total Food Service, it’s a 60/40 model – 60% of the space is used for guests (and seating) and 40% is used for the kitchen and other staff spaces.
Another critical step is calculating the maximum occupancy of your space depending on local building codes. These will vary by small restaurant type and location, but we suggest the following capacity per guest and square footage in these types of restaurants.
Full-Service Restaurant Dining: 12-15 square feet
Counter Service: 18-20 square feet
Fast Food: 11-14 square feet
Let’s give floor plan examples using the suggested capacity above. A 3,200 square foot restaurant space would have 1,920 square feet of space for guests and the capacity for a counter service small restaurant would be 106 customers. This would give each guest approximately 18 square feet of space.
Offering guests more space is a very good idea. Spacing tables further apart and creating wide lanes for traffic is an excellent way to make your small restaurant accessible, especially for those with disabilities. Plus, a study by Cornell University’s School of Hotel Administration found that guests are more generous with their spending if they have more personal space.
The solution? Provide a variety of seating styles, such as benches, booths, diagonal seating, two-top tables, small tables, or banquet-style arrangements. Osteria La Spiga in Seattle, Washington, is an excellent example of diverse seating options, as shown below. This approach also makes it easier to accommodate guests with disabilities.
6. Entrance Floor Plan
It’s critical that your restaurant’s entrance is inviting. It is the first impression guests will have of your restaurant. An entrance that leaves enough space to wait for tables makes people feel more comfortable and inclined to stay.
One helpful tip is to use signs or architectural elements to provide necessary information for guests as they walk in. This could be to guide them to a host stand or direct them to seat themselves. Of course, your entrance depends on the location and your style of service. In an area with lots of foot traffic, like a mall or shopping center, you might not need as much waiting area as a stand-alone small restaurant would.
7. Outdoor Seating Floor Plan
If you have the luxury of outdoor space, maximize it. A nice patio can attract a wider variety of customers to your small restaurant, driving additional sales and profits.
On the other hand, outdoor space that is out of the way or hard to find can slow service. This could lead to both guests and employees not wanting to use the additional space. To avoid this, design a floor plan that makes your outdoor space convenient to access for guests and servers.
The ideal location for a patio is close to the kitchen and dining room, so servers don’t have to walk very far in between. The example below from Acapulco’s Mexican Restaurant in Denver, CO has a patio in the back of the restaurant, with round seating. The patio has seven tables and is close to the dining room and the bathrooms.
8. Restrooms Floor Plan
Believe it or not, restrooms are a deciding factor in many people’s choice of restaurants, according to a survey by Zogby International. Designing restrooms that are big enough for all guests and easy to find from dining areas will create an attractive edge to your small restaurant. It’s best to avoid having guests move through staff areas to reach the restroom.
The example below, created with AutoCAD design software, shows bathrooms tucked into a corner near the back office. There are two restrooms, including one that is spacious enough for wheelchair accessibility.

9. Cashier and POS Station Floor Plan
The POS system stations are the brain and nerves of your small restaurant, sending and storing all the information that your restaurant needs to function daily. It’s where customers communicate with service staff and how the service staff communicates with the kitchen. POS technology also keeps track of all your small restaurant’s operations.
In a full service restaurant, be sure to set up POS stations at strategic and focal points around the dining room so that your servers can easily access them. They will thank you for the reduced legwork! You might also want to invest in handheld POS devices, allowing servers to efficiently send orders to the kitchen right from their tables.
To reduce the need for staff to constantly move between tables and the payment station, consider using handheld point-of-sale devices. These allow guests to order, pay, sign, tip, and even provide feedback on their dining experience right at the table.
The example below, from designer Raymond Haldeman’s features two POS stations located on opposite sides of the bar to prevent bartenders from crowding each other.

10. Emergency Exits Floor Plan
All restaurant floor plans must be created with emergencies in mind. Floor plan software SmartDraw gives the following example of a floor plan with its paths of egress marked in red.

Accessibility Requirements for Small Restaurant Floor Plans
States and municipalities have codes that public buildings must adhere to. Complying with building codes guarantees that your small restaurant is accessible to all guests. But, as architect Justin Alpert says, adhering to building codes is just the bare minimum – think about how you might design a space that works for everyone, not just “the average customer.”
When arranging your floor plan, take inspiration from the people that will use the space. Employing the principles of human-centered design not only results in beautiful and approachable small restaurant spaces but can also lead to more customer engagement. Throughout the floor plan process, make sure to answer this question – how can you engage all of your community with the design of your small restaurant?
The answer will all depend on you, your community, and your vision for your dream restaurant!
How to Choose a Small Restaurant Floor Plan
Now that you’re familiar with the key areas to focus on and some inspiring small restaurant layout design ideas, it’s time to consider what will work best for your venue.
When planning a small restaurant floor layout, keep in mind:
How much space is available? Account for dance areas and enough room for guests to move comfortably without overcrowding.
Where will you allocate the most space—dance floor, bar, VIP areas?
Include flexible design options to adapt to unexpected scenarios, such as spacing measures in case of future health guidelines.
Is your small restaurant accessible to all guests?
Will you feature a full-service bar?
Map it Out and Change it Up
After your new floor plan is set up and in use, it's essential to regularly assess its functionality. Adjustments are always possible, especially with seating options and dance floor arrangements.
Experiment with different layouts, and gather feedback from your regulars to discover what works best for your unique small restaurant atmosphere.
Related Small Restaurant Resources
Restaurant Floor Plan Templates
Use these restaurant floor plan templates to get inspired as you map, or reimagine, the layout and space setup for your restaurant.
Is this article helpful?
DISCLAIMER: This information is provided for general informational purposes only, and publication does not constitute an endorsement. Toast does not warrant the accuracy or completeness of any information, text, graphics, links, or other items contained within this content. Toast does not guarantee you will achieve any specific results if you follow any advice herein. It may be advisable for you to consult with a professional such as a lawyer, accountant, or business advisor for advice specific to your situation.
Subscribe to On the line
Sign up to get industry intel, advice, tools, and honest takes from real people tackling their restaurants’ greatest challenges.
By submitting, you agree to receive marketing emails from Toast. We’ll handle your info according to our privacy statement. Additional information for California residents available here.